ID do Imóvel: 1202

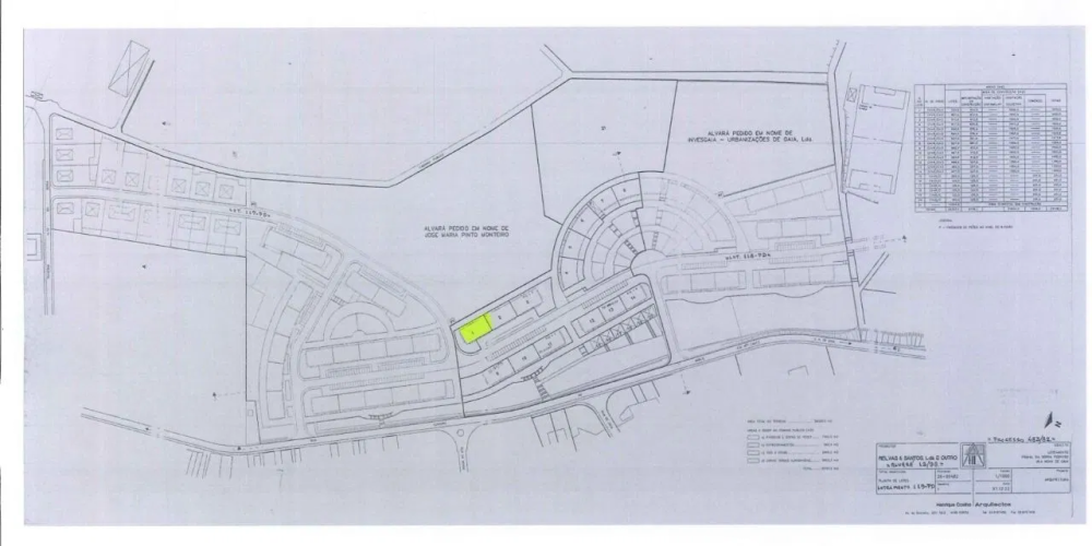
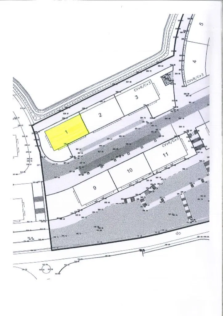
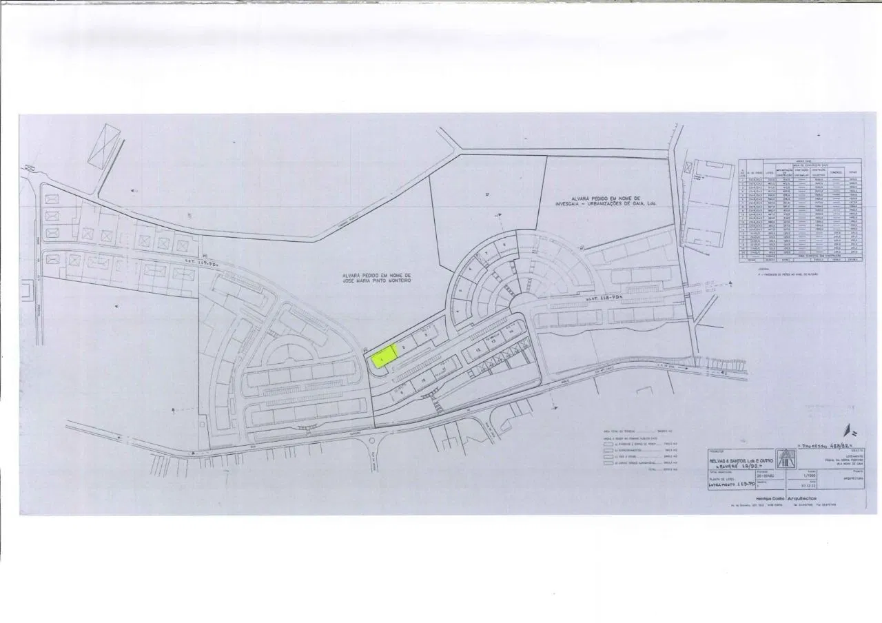
Terreno para construção de 16 habitações

DESCRIÇÃO DO IMÓVEL

Terreno para construção de edifício de cave, r/c e 3 andar, com 3 frentes, com uma área de construção de 1650m2, em terreno loteado, sem projecto aprovado, em zona com fácil acesso à A29 (Nó de Canelas) e A1 (Nó dos Carvalhos) e ainda A32. Fácil acesso ao Hospital de Gaia. Loteamento junto à Estrada Nacional 1. Possibilidade de permuta por habitações no local ou outras localizações.

Características – Aceita Permuta
– Asfaltado
– Iluminação Pública
– Ligação A Rede De Água
– Ligação A Rede De Saneamento
– Ligação A Rede Eléctrica
– Vista De Cidade
– Vista De Floresta
– Zona Arborizada

Valor do Imóvel

€ 325000,00

Valor do Condomínio

Vídeo

Explore a área

DÚVIDAS SOBRE O IMÓVEL

PREENCHA O FORMULÁRIO

Imóveis similares

Arrendar

Loja para Arrendamento Devesas, Vila Nova de Gaia

Cidade: Porto

€ 800,00

Boss Smart City

Cidade: Porto

€ 315000,00

City Concept Evolution

Cidade: Porto

€ 215000,00

Preços sob consulta

Comprar

Boss Gardens

Cidade: Porto

€ 368369,00

DESTAQUE

Vendido

Moradia T4 – Urbanização dos Moutidos- Águas Santas

Cidade: Maia

€ 230000,00

Terreno para construção de 16 habitações

Cidade: Vila Nova de Gaia

€ 325000,00

Solicitar plantas

PREENCHA O FORMULÁRIO PARA QUE POSSAMOS LHE ENVIAR AS PLANTAS NO IMÓVEL